Zu verkaufen
Dachgeschosswohnung mit Aufzug
Zu verkaufen65185 Wiesbaden
Dachgeschosswohnung mit Aufzug
65185 Wiesbaden
1 Schlafzimmer
1 Badezimmer
53 m²
222.860 €
Infos anfordern
Grundlagen
- Kategorie: Zu verkaufen
- Schlafzimmer: 1
- Badezimmer: 1
- Zimmer insgesamt: 2
- Stockwerk: 4
- Fläche: 53 m²
- Baujahr: 1900
Beschreibung
-
Beschreibung:
Altbau-Dachgeschosswohnung mit Aufzug
Wiesbaden Loft in der City Objektbeschreibung:
Dieses Altbaugebäude befindet sich an einer grünen Allee in zentraler Lage.
Den Hauptbahnhof sowie die Innenstadt erreichen Sie bequem zu Fuß.
Das Einzeldenkmal mit AfA sowie alle Wohnungen und Leitungen wurden vor einigen Jahren aufwendig kernsaniert.
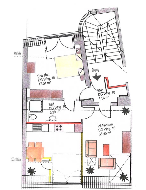
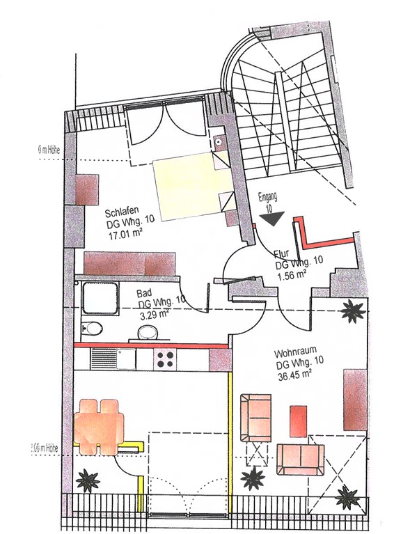
Die Wohnung verfügt über Parkettböden, einen großen Wohn-Essbereich, ein Schlafzimmer und ein Tageslichtbad.
Sie erreichen die Wohnung bequem mit dem Aufzug.
Weitere Informationen zu dem Objekt:
Einbauküche, Keller ca. 7m²; die Wohnung ist derzeit vermietet für € 650.-/MonatEnergieausweis:
Der Energieausweis ist laut Gesetz nicht erforderlichHeizungsart:
ZentralheizungWesentlicher Energieträger:
GasProvision für Käufer:
3% des Kaufpreises inkl. MwSt.
Fragen Sie einen Mitarbeiter nach diesem Objekt:
Powered by Estatik




